Gepflegtes MFH mit 5 Wohneinheiten im Bürgereschviertel!

26123 Oldenburg, Mehrfamilienhaus zum Kauf

Kontaktdaten

Objektdaten

  • Objekt ID
    4308
  • Objekttypen
    Haus, Mehrfamilienhaus
  • Adresse
    26123 Oldenburg
  • Wohnfläche ca.
    310,35 m²
  • Vermietbare Fläche ca.
    310,35 m²
  • Grund­stück ca.
    546 m²
  • Wesentlicher Energieträger
    Gas
  • Baujahr
    1973
  • Zustand
    gepflegt
  • Käufer­provision
    5,95% inkl. MwSt. vom Kaufpreis
  • Mieteinnahmen (Ist)
    33.941,52 EUR pro Jahr
  • Mieteinnahmen (Soll)
    33.941,52 EUR pro Jahr
  • Kaufpreis
    699.000 EUR

Ausstattung / Merkmale

  • ✓ Außenstellplatz

Energieausweis

  • Energieausweistyp
    Verbrauchs­ausweis
  • Gültig bis
    02.02.2026
  • Gebäudeart
    Wohngebäude
  • Baujahr lt. Energieausweis
    1973
  • Primärenergieträger
    Erdgas leicht
  • Endenergie­verbrauch
    97,90 kWh/(m²·a)
  • Energie­effizienz­klasse
    D
0 25 50 75 100 125 150 175 200 225 250+ H G F E D C B A A+ H G F E D C B A A+ Endenergieverbrauch 97,90 kWh/(m²·a)

Objekt­beschreibung

Beschreibung

Hier bieten wir Ihnen die seltene Gelegenheit, ein Mehrparteienhaus im sehr begehrten Oldenburger Bürgereschviertel zu erwerben.

Das Gebäude wurde in den 1970er Jahren in konventioneller und massiver Bauweise mit Teilkeller erstellt und verfügt derzeit über 5 abgeschlossene Wohneinheiten, die jeweils über einen Balkon oder eine Terrasse in Südausrichtung verfügen.

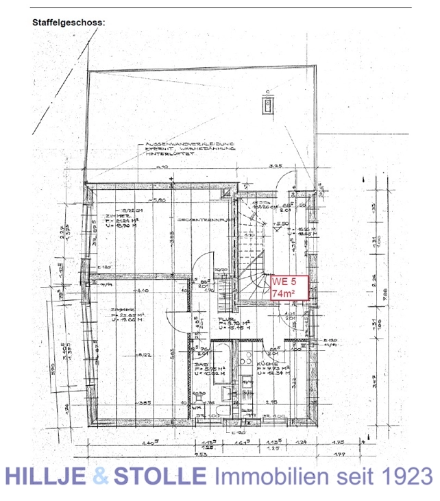
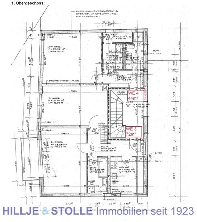
Zwei Wohneinheiten befinden sich im Erdgeschoss, zwei im Obergeschoss und die fünfte Wohnung ist im Staffelgeschoss untergebracht.

Weiterhin gehört zu diesem sehr guten Angebot eine Garage mit Werkstatt, die derzeit separat vermietet ist.

Der Außenbereich ist pflegeleicht angelegt. Stellplätze stehen in ausreichender Zahl zur Verfügung.

Sämtliche Wohnungen befinden sich in einem gepflegten Zustand.

Die Mieten weisen noch Steigerungspotential auf, das in den kommenden Jahren ausgeschöpft werden kann.

Diese betragen zurzeit 33.941,52 € p.a..

Ausstattung

- Zentralheizung in Brennwerttechnik (2019)
- Kunststofffenster mit zweifach-Isolierverglasung
- Laminatböden
- Dachterrasse, Balkone, Terrassen in Süd-/ Westausrichtung
- Teilkeller
- Stellplätze
- Garage mit Werkstatt

Sonstige Informationen

Unsere Immobilienangebote verstehen sich freibleibend und unverbindlich. Zwischenvermittlung ausdrücklich vorbehalten. Die Angaben zum Objekt basieren auf erteilten Informationen Dritter. Für die Richtigkeit und Vollständigkeit kann deshalb keine Haftung übernommen werden.

Lage

Die hier näher beschriebene Immobilie, die wir Ihnen zum Kauf anbieten, befindet sich auf einem sehr ruhigen Hintergrundstück im sehr begehrten Oldenburger Bürgereschviertel.

Sämtliche Einrichtungen des täglichen Bedarfs, wie Schulen, Kindergärten Ärzte, Apotheken sowie zahlreiche Einkaufs- und Naherholungsmöglichkeiten sind in der unmittelbaren Umgebung vorhanden und sehr gut mit dem Fahrrad zu erreichen.

Die dargestellte Position der Immobilie ist nur eine ungefähre Angabe.

Direktanfrage

* Pflichtangaben
 SSL-verschlüsselt
Immobiliendaten-Import und Darstellung für WordPress: WP-ImmoMakler®
Cookie Consent mit Real Cookie Banner